



Centrala termică pe motorină cu condensare Domusa JAKA HFD 30 CONDENS OD este proiectată pentru a oferi un randament ridicat în condiții exterioare, optimizând spațiul interior și garantând o funcționare eficientă și ecologică. Cu o putere utilă de 28,7 kW la 80°C/60°C, această centrală se remarcă prin tehnologia sa avansată de condensare, materiale robuste și design rezistent la intemperii. Este soluția perfectă pentru cei care caută confort termic, economisire de energie și o instalare exterioară de încredere.
Modelul JAKA HFD 30 CONDENS OD încorporează tehnologie de condensare care recuperează căldura gazelor de ardere, atingând randamente de peste 103% față de puterea calorifică inferioară (P.C.I.). Acest lucru se traduce printr-o economie de până la 30% comparativ cu centralele convenționale, permițând reducerea semnificativă a consumului de combustibil și a costurilor operaționale.
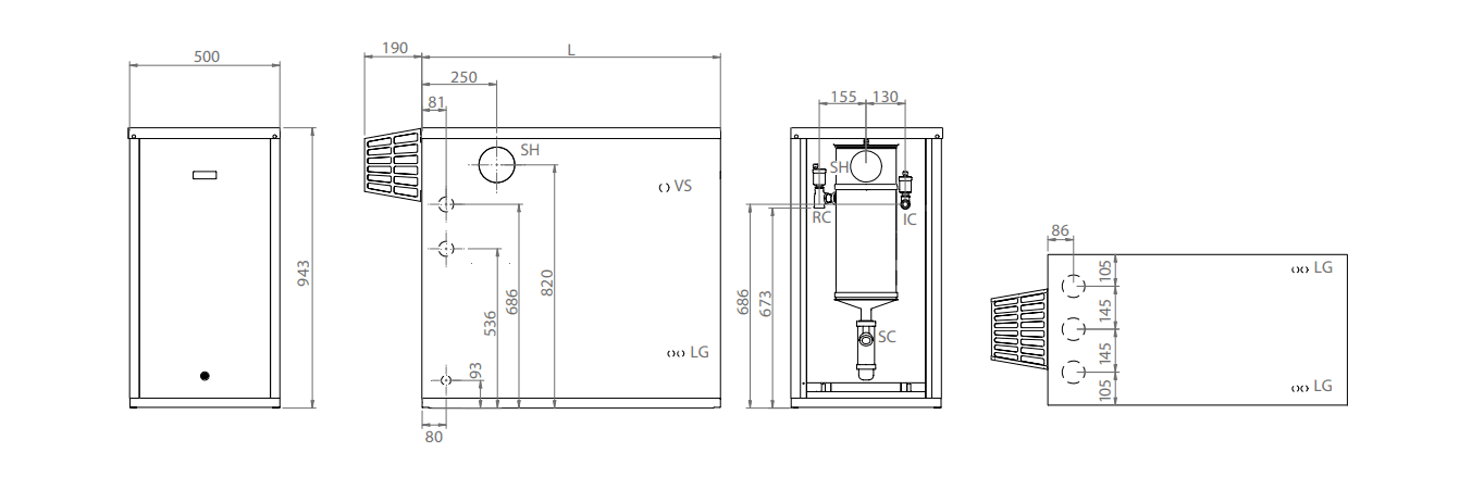
Proiectată special pentru instalarea în exterior, această centrală este echipată cu carcase etanșe tratate cu acoperire EPOXY, care o protejează împotriva umezelii, ploii și variațiilor de temperatură. Etanșeitatea sa asigură o funcționare eficientă și sigură, chiar și în condiții meteorologice adverse, în timp ce designul său compact permite optimizarea spațiului disponibil în interiorul locuințelor.
Corpul centralei este fabricat din fontă, un material rezistent la uzură care garantează o durată lungă de viață. În plus, încorporează un condensator din oțel inoxidabil care maximizează transferul termic și asigură o funcționare optimă pe termen lung. Aceste materiale de înaltă calitate reduc întreținerea și prelungesc durabilitatea echipamentului.
Izolația acustică avansată și utilizarea unui arzător etanș fac ca această centrală să fie extrem de silențioasă, oferind confort atât în medii rezidențiale, cât și în spații exterioare.
Domusa JAKA HFD 30 CONDENS OD este proiectată pentru a facilita montajul în orice tip de instalație. Evacuarea gazelor se realizează prin tuburi din polipropilenă, ceea ce simplifică instalarea și reduce costurile asociate. În plus, panoul de comandă frontal include un termostat anti-îngheț, termostat de reglare, comutator luminos de pornire/oprire și alte funcții care fac utilizarea sa mai intuitivă și eficientă.
Centrala Domusa JAKA HFD 30 CONDENS OD este ideală pentru locuințe unifamiliale și spații comerciale care au nevoie de o soluție termică eficientă și adaptabilă pentru exterioare. Puterea sa ridicată, întreținerea redusă și designul robust o fac o alegere de încredere pentru climatele exigente.
Cu Domusa JAKA HFD 30 CONDENS OD, utilizatorul obține un echipament eficient, durabil și sustenabil, proiectat pentru a garanta confortul termic maxim cu un impact minim asupra mediului.