



Cazanul pe motorină cu condensare Domusa JAKA HFD 20 CONDENS OD este conceput special pentru instalare în exterior, oferind o soluție practică și eficientă pentru locuințele unde spațiul interior este limitat. Cu o putere utilă de 19,1 kW la 80°C/60°C, acest model îmbină tehnologia avansată de condensare, materiale de înaltă calitate și un design gândit pentru a rezista intemperiilor. Performanța sa superioară și certificarea energetică clasa A o transformă într-o opțiune remarcabilă pentru cei care caută eficiență, economie și sustenabilitate.
Cazanul valorifică efectul condensării pentru a recupera căldura gazelor de ardere, atingând randamente superioare de 103% față de puterea calorifică inferioară (PCI). Acest proces reduce semnificativ consumul de combustibil, realizând economii de până la 30% comparativ cu cazanele tradiționale. Eficiența sa ridicată este certificată de directiva europeană ErP, garantând un impact ambiental redus și costuri operaționale mai mici.
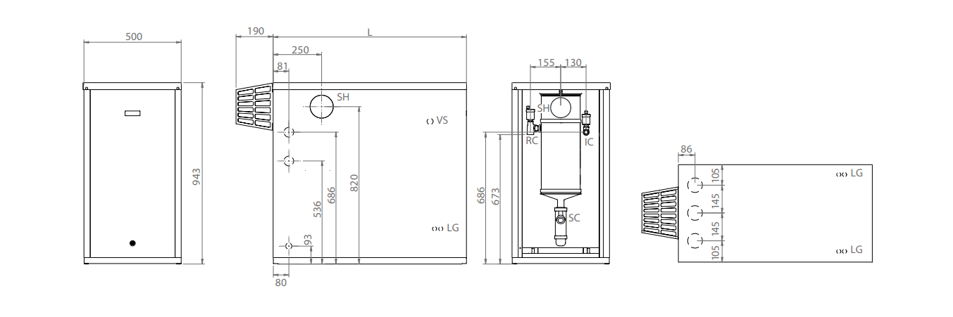
Designul Domusa JAKA HFD 20 CONDENS OD este optimizat pentru a rezista condițiilor climatice nefavorabile. Carcasele etanșe sunt acoperite cu un strat de EPOXY, oferind o protecție durabilă împotriva umidității, ploii și variațiilor de temperatură. În plus, etanșeitatea sa asigură o funcționare sigură și eficientă în orice mediu.
Corpul cazanului este fabricat din fontă, un material care garantează o durată lungă de viață chiar și în condiții exigente. Condensatorul din oțel inoxidabil asigură un randament termic ridicat, în timp ce designul modular facilitează întreținerea și prelungește durabilitatea echipamentului.
Datorită arzătorului etanș și izolației acustice de înaltă calitate, cazanul oferă o funcționare extrem de silențioasă, asigurând confort atât în interiorul, cât și în exteriorul locuinței.
Modelul JAKA HFD 20 CONDENS OD este proiectat pentru o instalare simplă și versatilă. Poate fi adaptat la diferite configurații de sisteme de încălzire și permite evacuarea gazelor prin tuburi de polipropilenă, ceea ce simplifică montajul și reduce costurile asociate. În plus, include un panou de comandă complet și ușor de utilizat, cu funcții precum termostat anti-îngheț, termohidrometru și întrerupător luminos de pornire și oprire.
Cazanul Domusa JAKA HFD 20 CONDENS OD este o soluție ideală pentru locuințele unifamiliale și spațiile care necesită optimizarea spațiului interior prin instalarea echipamentului de încălzire în exterior. Designul său rezistent, eficiența energetică și întreținerea redusă îl transformă într-o opțiune de încredere pentru climatele exigente și utilizatorii care prioritizează economia și sustenabilitatea.
Cu Domusa JAKA HFD 20 CONDENS OD, utilizatorul beneficiază de un cazan robust, eficient și adaptat nevoilor moderne, garantând confort termic și o investiție durabilă.